s' Heunest
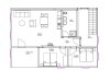
Unsere Wohnung s´Heunest mit Balkon bietet Euch 65 qm und Platz für 2 Personen. Ein gemütlicher offener Wohn-, Koch- und Essbereich lädt ein zu gemütlichen Stunden.
Im Schlafzimmer findet sich ausreichend Stauraum für Eure Urlaubsgarderobe. Für einen erholsamen und gesunden Schlaf sorgen die aus Zirbenholz angefertigten Betten.
Der offene Wohn- und Essbereich lädt zu gemütlichen Stunden ein - ob mit oder ohne Fernseher. Der Nord-West-Balkon bietet einen herrlichen Blick in die Natur sowie atemberaubende Sonnenstunden am Abend.
Die Küche ist komplett mit Spülmaschine, Backofen, Wasserkocher, Toaster und Kaffeemaschine ausgestattet. Ein runder Esstisch lädt zum gemeinsamen Essen oder zu geselliger Runde ein.
Das geräumige Badezimmer verfügt über eine bodengleiche Dusche, einen Föhn sowie einen Handtuchwärmer - für maximalen Komfort ist bestens gesorgt.
Stabiles WLAN ist in allen Räumen verfügbar. Die gesamte Wohnung verfügt über Fußbodenheizung und einen sichtbaren Dachstuhl.







